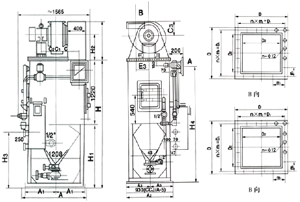
此类型除尘机组有几种不同型式的排泥浆方法,本型号为锥形漏斗排泥浆的冲激式除尘机组,定型为CCJ/A(C—冲激式;C—除尘;J—机组;A—锥形漏斗排泥浆)。按处理风量的能力分八种规格。
1、适用范围:本机组适用于干净化非纤维性,无腐蚀性的温度不高于300℃的含尘气体。适用于冶金、煤炭、化工、铸造、发电、建筑材料及耐火材料等企业。在用于具有粘性的生石灰运输系统中的除尘亦能获得很好的效果,这是该机组的又一突出优点。
2、溢流箱的水封高度是按机组分雾室内负压不大于400毫米水柱或正压不大于150毫米水柱设计的,非此使用条件,需另行设计溢流箱。
|
型号规格
|
进口风速(m/s)
|
处理风量(m3/h)
|
阻力(kg/m2)
|
耗水量(t/h)
|
效率(%)
|
外型尺寸(长×宽×高)
|
重量(kg)
|
|
CCJ/A-5
|
18
|
5000
|
100-160
|
0.16
|
99
|
1568×1284×3124
|
809
|
|
CCJ/A-7
|
7000
|
0.23
|
1568×1634×3240
|
1058
|
|||
|
CCJ/A-10
|
10000
|
0.33
|
1568×2012×3579
|
1212
|
|||
|
CCJ/A-14
|
14000
|
0.46
|
1956×2600×4828
|
2430
|
|||
|
CCJ/A-20
|
20000
|
0.66
|
2573×2600×4828
|
3370
|
|||
|
CCJ/A-30
|
30000
|
0.98
|
3279×2600×4828
|
4132
|
|||
|
CCJ/A-40
|
40000
|
1.32
|
4200×2250×5196
|
5239
|
|||
|
CCJ/A-60
|
60000
|
1.97
|
5913×2250×5566
|
6984
|


技术参数


