PBC型旁插扁袋式除尘器是采用上进风、下排风、顺流外滤式、反吸风清灰方式,如 图6-13所示D适用于120t:以下的含尘气体场合^ PBC型旁插扁袋式除尘器的结构特点是采用扁袋式旁插安装,在相同的箱体容积内, 安排更多的过滤面积^同时,可以根据处理不同风量的需要,以相同的过滤单元结构,组成不同规格的组合形式D另一特点是清灰采用大气反吸风结构, 借助除尘器的负压运行,当清灰时*反复启 闭反吸风阀,使滤袋重复吸瘪和鼓胀,以抖 落滤袋外表面的粉尘,达到清灰目的。

①PBC型组合式旁插扁袋式除尘器 PBC型组合式旁插扁袋式除尘器的系列有单 元数为2?I2共11个组合式规格,其技术性 能见表6-22。压力损失约800?1200Pa,入 口粉尘浓度小于30g/m3 ,除尘效率大 于 99.5%。
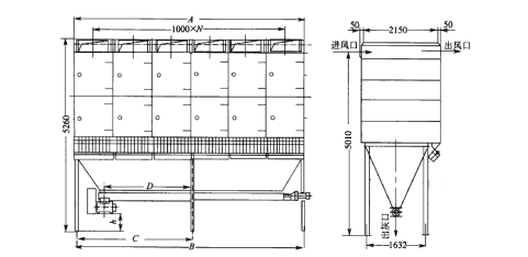
②LYC型旁插脉冲喷吹扁袋式除尘器 LYC型旁插脉冲喷吹扁袋式除尘器是模块式 定型产品,在喷吹每个滤袋时其喷吹直径和 数量,以及脉冲阀的选型都是固定的。其技 术参数见表6-23,外形尺寸见图6-14和 表 6-24,


注,1.上述风童以过滤风速为1. 5?2. Om/miti的汁算值,实际风速应按不同的工况设计选择。 2.清灰所:气源为400?SOOkPa,每阀每次耗气里约为0.05m

图6-14 LYC型旁插脉冲喷吹扁袋式除尘器
表6~24 LYC型旁插脉冲喷吹扁袋式除尘醫外形尺寸

