LCDMCC型仓顶脉冲袋式除尘器,按仓顶工作要求简化了结构,具有气体处理量大,净 化效果好,性能稳定运行可靠的特点。适宜布置在各种粉料储库的顶部,用于捕集各种细小干 燥的非纤维粉尘。是筒库除尘的常用设备。它由以下几个部分组成:①上箱体,包括盖板、排 气口等;②下箱体,包括机架、滤袋组件等;③清灰系统,包括电磁脉冲阀、脉冲发生器等。
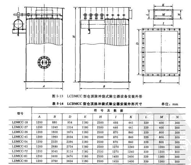
其工作原理是含尘空气由除尘器底下进人除尘箱体中,颗粒较粗的粉尘靠其自身重力向下 沉降,落人灰仓,细小粉尘被吸附在滤袋外表面,经滤袋过滤后的净化空气进人上箱体从出气 口排出,被吸附在滤袋外表面的粉尘,随者时间的增长,越积越厚,除尘器阻力逐渐上升,处 理的气体量不断减少。为了使除尘器经常保持有效的工作状态,使压力损失保持在一定的范围 内,控制仪按规定要求对各个电磁脉冲阀发出指令,依次打开阀门,顺序向各组滤袋内喷吹高 压空气,将吸附在滤袋外面的粉尘清除下来。LCDMCC型仓顶脉冲袋式除尘器的主要技术参数见表5-13。LCDMCC型仓顶脉冲袋式除尘器设备安装外形见图5-13。LCDMCC型仓顶脉冲 袋式除尘器安装外形尺寸见表5-14。


LCDMCC防爆型仓顶脉冲袋式除尘器安装外形尺寸与LCDMCC型相同,区别在于中箱体上加装防爆门、脉冲电磁阀采用防爆型、滤袋采用防静电型。
