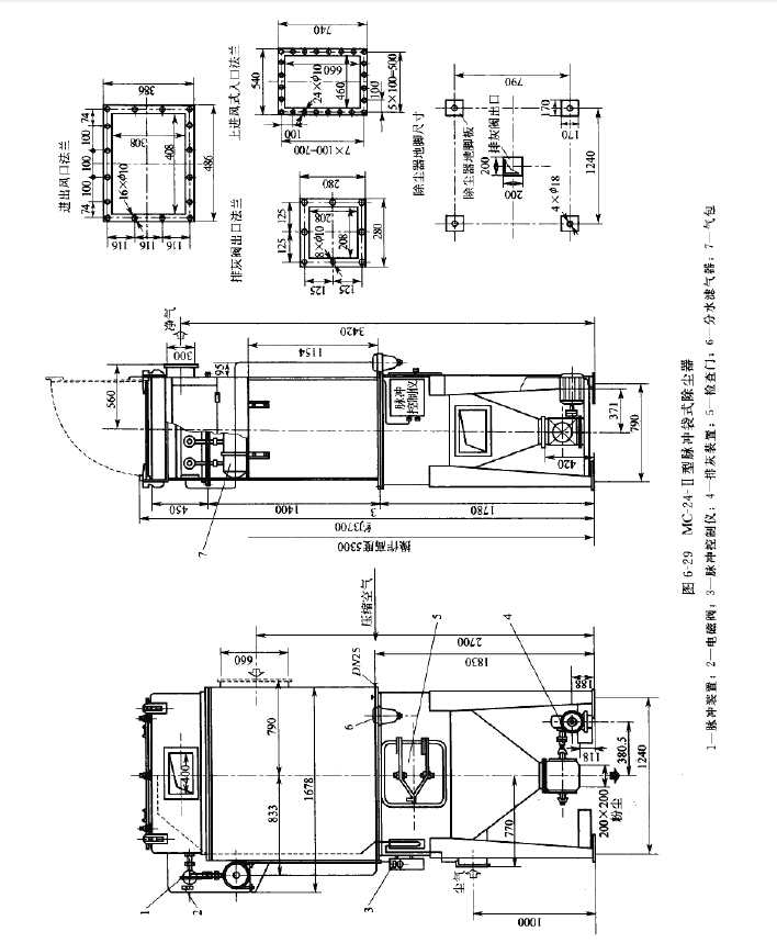
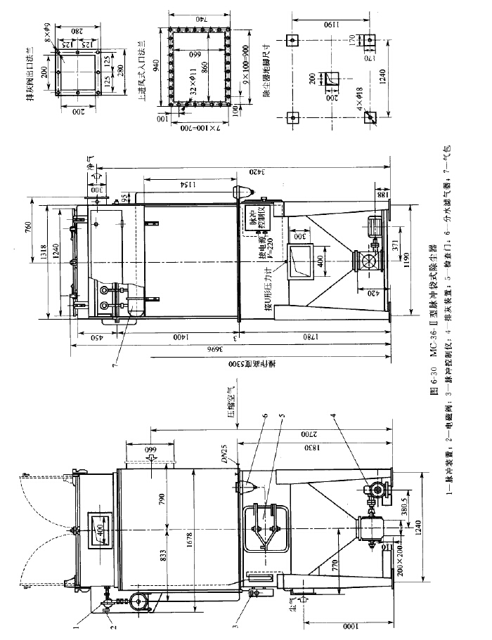
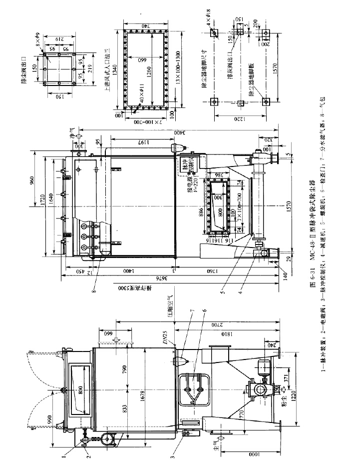
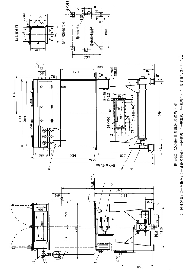
MC型脉冲袋式除尘器的形式有侧开门结构的 MC型脉冲袋式除尘器和上揭盖结构的MC-n型脉冲 袋式除尘器。
MC型脉冲袋式除尘器为侧开门结构,规格有24? 120袋,处理气量自2160?20800m3/h。其中MC-24A 型带灰斗,MC-24B型不带灰斗6脉冲控制仪有气动、 电动和机械控制三种。其技术性能见表6-33,装配形式
和主要尺寸见图&23?图6-26及表6-34和表6-35。



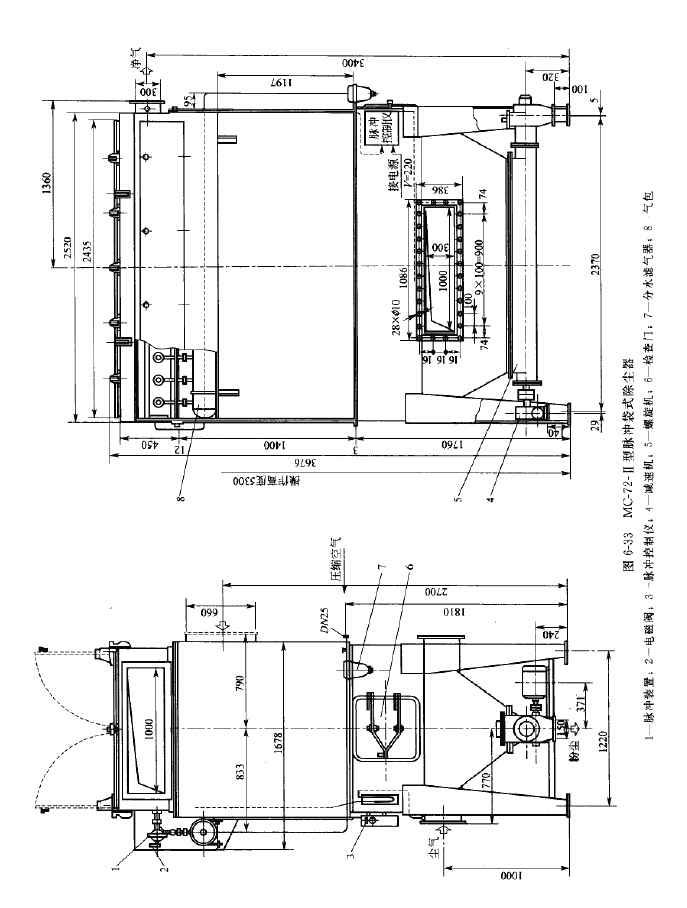
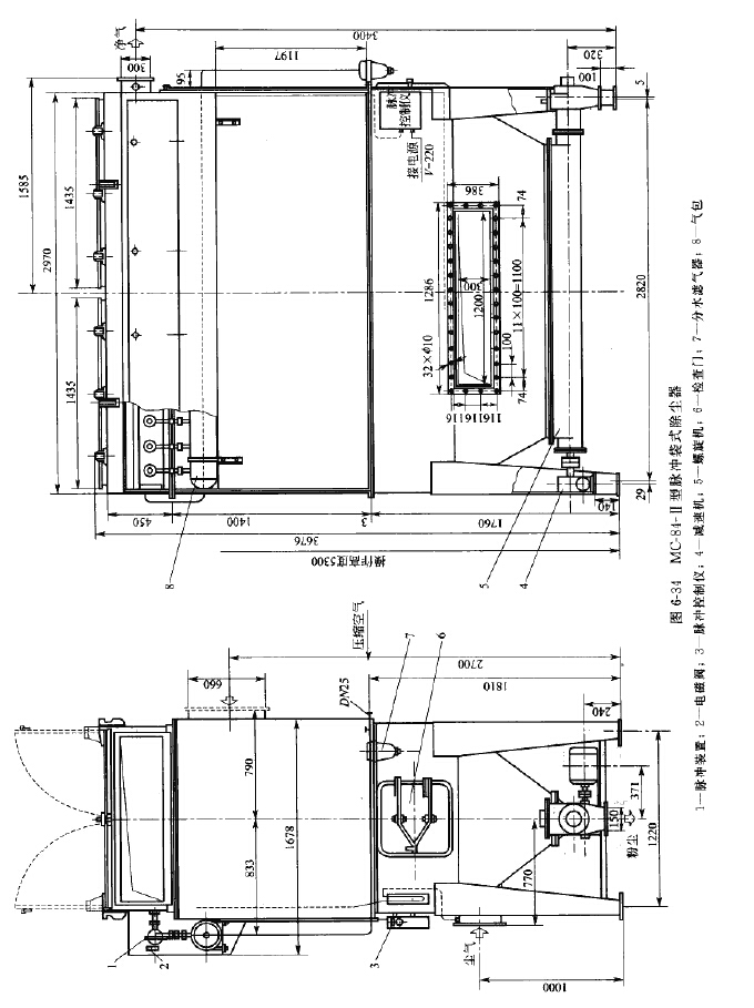
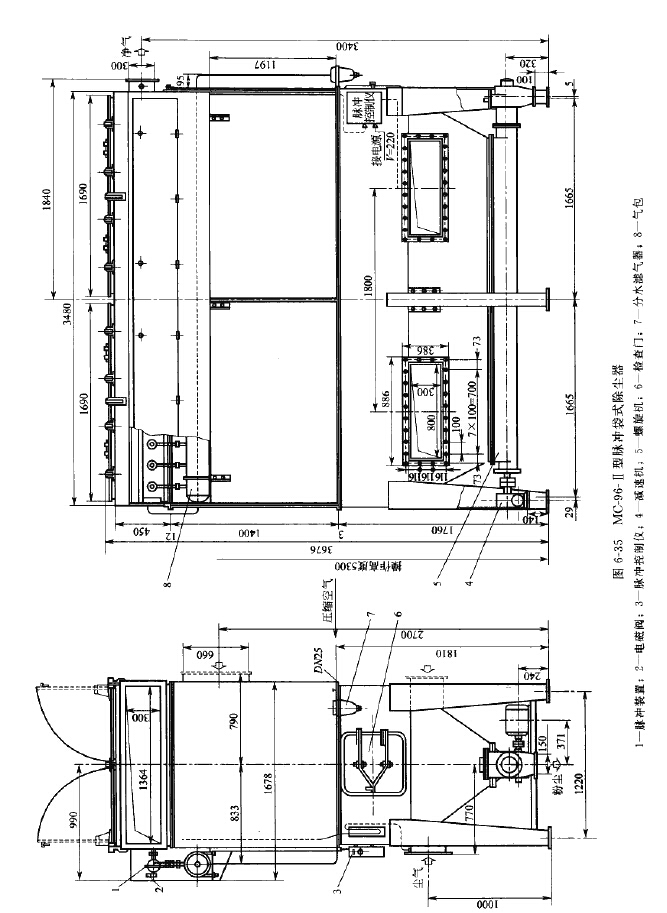
MC-II型脉冲袋式除尘器为上揭盖结构,喷吹系统增设保护罩和改进的盖板结构,可露 天设置,并有上、下两种进气方式,如图S-27和图^28所示。其装配形式见表条36,技术 性能见表6-37,外形和安装尺寸见图6-29?图质量见表6-38,














